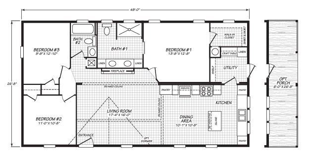
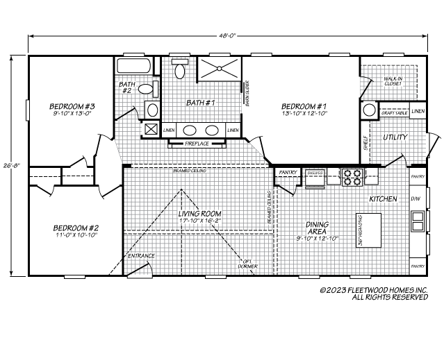
Bella
Talk to Home Team
Fleetwood "Bella"
Display Available for Tours
- Optional porch
- Energy star 2
- 2' x 6' exterior walls
- Fireplace
- Barndoor
- Built-in microwave
1280 Sq. Ft.
2
3
Interested in this model?
Please fill out the form below and one of our
Home Team Representatives will reach out to you.






















