Paris
Talk to Home Team
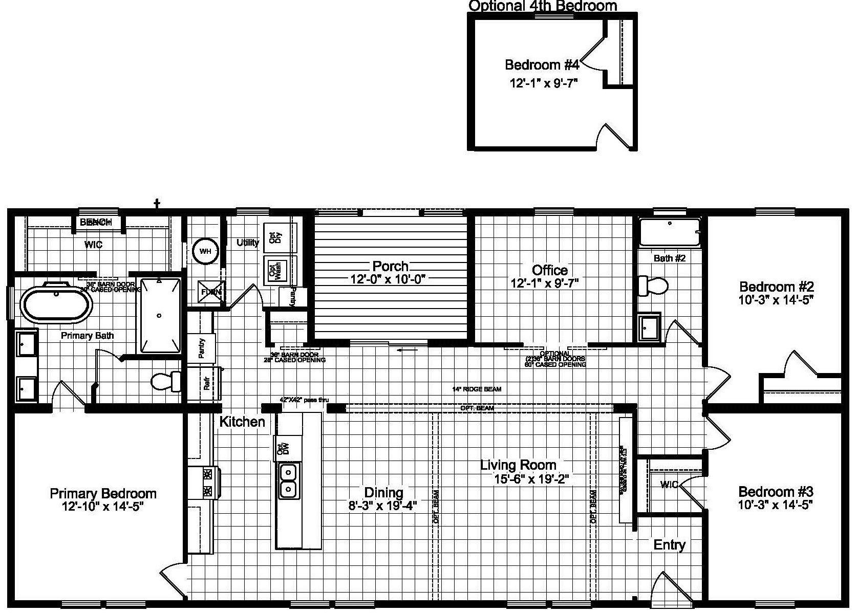
Champion Ascend "Paris"
NOT ON DISPLAY - AVAILABLE FOR ORDER
- Recessed porch
- Shiplap entertainment wall
- Sliding barn door
- 42" upper wall cabinets
- Smooth top range
- Side x side fridge
- Square porcelain sinks
- Free standing tub
- 72" dumawall shower
- Ceiling fan wire and brace in 2nd and 3rd bedroom
- 2' x 6' exterior walls
- 8' sidewall
1941 Sq. Ft.
2
3
Interested in this model?
Please fill out the form below and one of our
Home Team Representatives will reach out to you.









