Greystone
Talk to Home Team
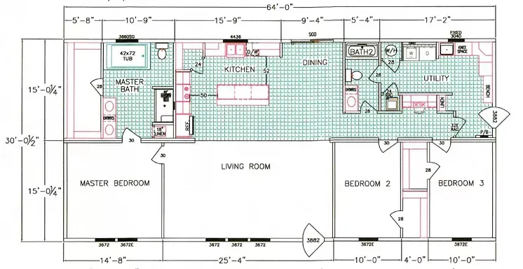
Adventure "Greystone"
Display Available for Tours
One of our most popular models!
- Media wall with floating shelves
- Pullout cutting board and trashcan cabinet
- Hardwood cabinet doors and shelves
- 2' x 6' exterior walls
- 72" tile shower
- Zone 3 insulation
- Slow close cabinet and drawers
1920 Sq. Ft.
2
3
Interested in this model?
Please fill out the form below and one of our
Home Team Representatives will reach out to you.











